**Some pictures may be shown with optional features. Features and equipment are subject to change at any time. Please contact us for the most current info
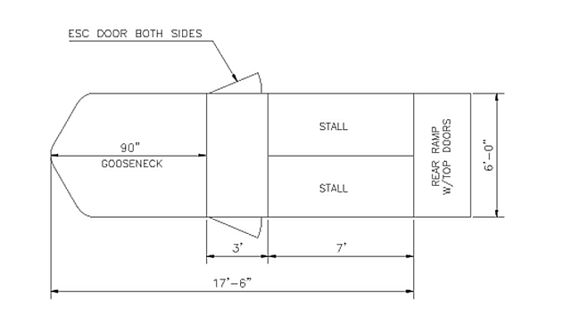
2-Horse Gooseneck Thoroughbred Classic
Shown with optional side ramp
Click on any of the images below for a larger version